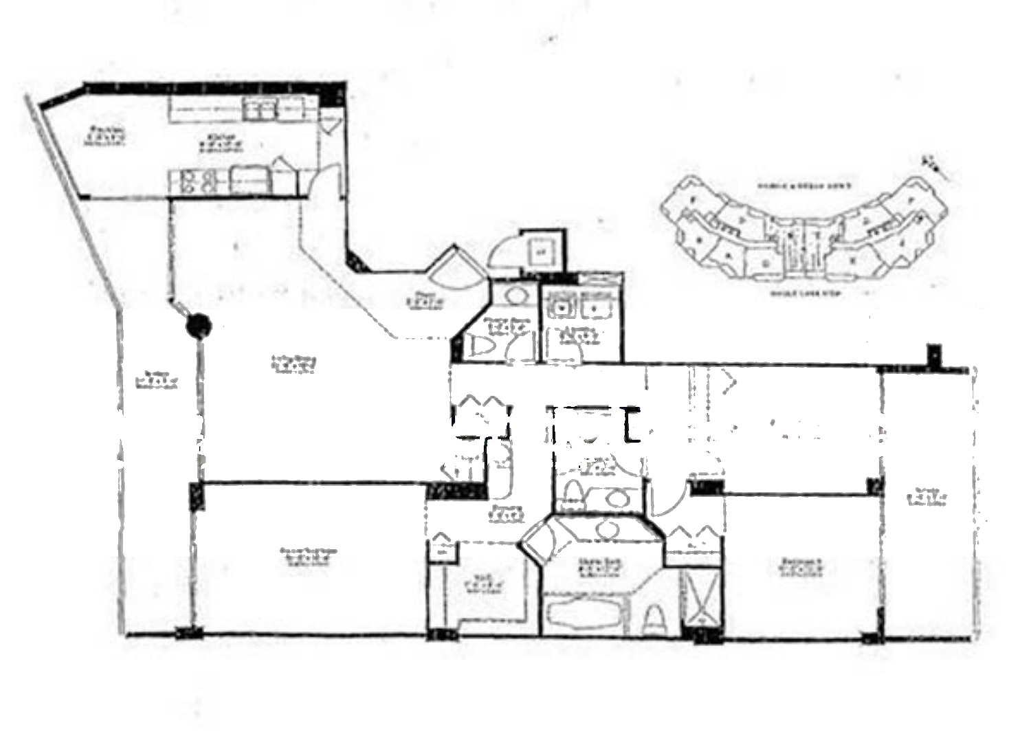
06 Floor Plan – 1000 Island Blvd
2 Bedrooms · 2.5 Bathrooms · 1,520 sq ft interior
Line 06 · Model E · 2 bed / 2.5 bath · 1,520 sf
Building Details
- Building: 1000 Island Blvd
- Address: 1000 Island Blvd, Aventura, FL 33160
- Year Built: 1991
- Total Building Units: 319
Other Floor Plans at 1000 Island Blvd
Compare All Williams Island Buildings · Floor Plans Guide · Schedule a Showing